办公室空间写字楼CAD施工图纸方案 室内设计平面效果图库配3d模型共2000套,15G,
百度网盘链接下载。
办公空间CAD施工图+效果图
【数量】:共计2000套,效果图高清无水印
【内容】:
办公空间CAD文件+效果图270套(4套配套3d模型)
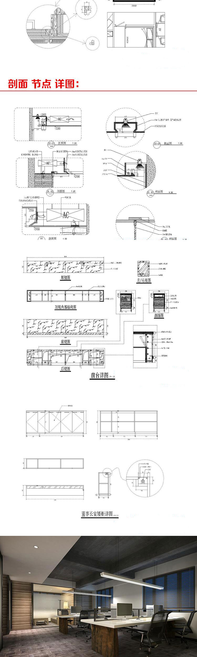
办公空间类节点大样图600套
办公空间高清方案31套(JPG排版图/PPF文件片)
-
办公空间高清实景图无水印套图410套(JPG装修图)
【格式】:cad+jpg ( CAD施工图源文件+效果图片)
其中施工图源文件都为比较完整的图纸,包括平面、天花、地面、各立面大样等。其中139套配高清无水印效果图,效果图每套2—8张不等,部分为方案图排版。内含许多高清效果图/实景装修图,不仅适合设计师,也适合业主!





























